The impact
Sidewalks along the north side of Commerce Drive between East College Avenue and Sycamore Place will be closed to pedestrians beginning Friday, July 29. This will allow construction work to begin on the Oak Cottage Court development project at 230 Commerce Drive. Construction deliveries and similar activities may also require temporary partial closure of one northbound lane of Commerce Drive.
Work is expected to take about 10 months. Motorists should expect delays stemming from the construction trucks and temporary deliveries.
How to manage
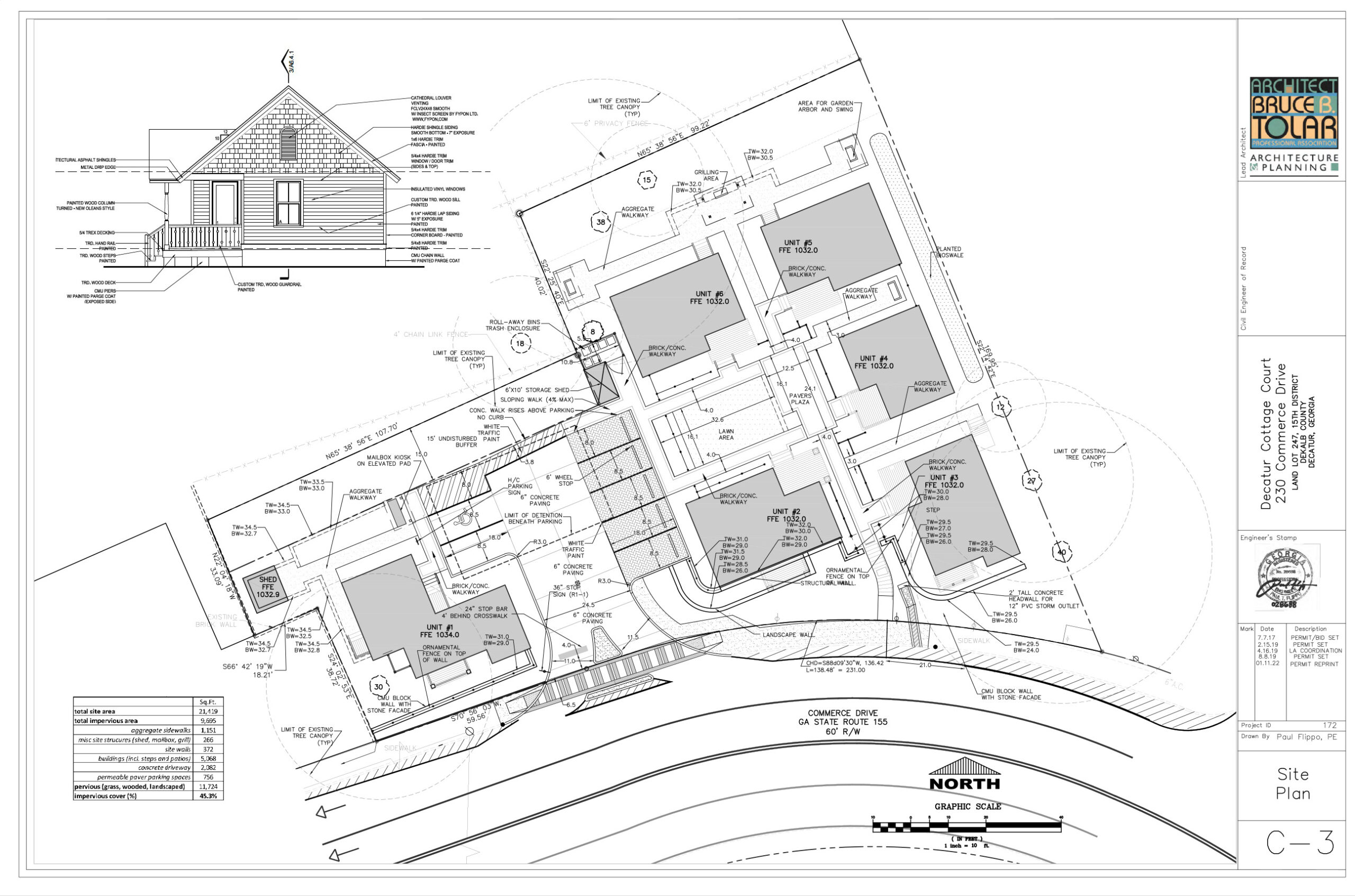
Throughout the duration of construction, pedestrians will be able to use the sidewalk along the south/west side of Commerce Drive, with access via crosswalks at Sycamore Place and East College Avenue. See illustration below (click for larger view) for the applicable pedestrian detours.
Signs and traffic flaggers will assist motorists in moving safely around obstructions. Construction crews will work diligently to minimize the length of impact to motorists. Construction equipment will eventually be present and motorists should remain aware.

Further details
The Oak Cottage Court is a project of the Development Authority of the City of Decatur, in collaboration with non-profit developer Atlanta Neighborhood Development Partnership (ANDP), general contractor Fortas Homes, and the Decatur Land Trust.
The community will soon begin to see preliminary construction activities, including the setting out of construction barricades and barrels, and the installation of soil erosion control fencing. The tree and site work will be most noticeable and City Arborists are involved in the project to ensure that more than 25% of the existing canopy will be conserved and new trees will be planted to compensate.
At completion, the project will have six new single-family cottages around a shared greenspace, with parking and new landscaping. The homes will be affordably priced and offered for sale to employees of the City of Decatur, City Schools of Decatur, and the Decatur Housing Authority. At the sale of the homes, the land will transfer to ownership under the Decatur Land Trust to provide permanent affordability for Decatur’s workforce, even as the homes change hands over time.
More information about Decatur’s affordable housing initiatives is available at www.decaturga.com/affordablehousing. To learn about the Decatur Land Trust and how it can help address Decatur’s need for affordable housing, please visit www.decaturlandtrust.org.

Got questions? Direct them here.